Ponto para Aluguel , 873 m² por R$ 34.000

Ponto para Aluguel , 873 m² por R$ 34.000 LO0002_LUNA
Centro, São Paulo - SP

6 Banheiros
873m2

Loja comercial com 873m² de área útil, no coração da cidade, ao lado da estação de metrô São Bento,

O centro histórico de São Paulo é o berço da cidade. Foi lá que, em 1554, São Paulo começou. A região central ainda mantém alguns dos emblemáticos patrimônios da cidade. Conheça alguns dos seus pontos mais importantes:
A Faculdade de Direito, a mais antiga Instituição do gênero no Brasil, deve a sua origem a um decreto imperial assinado em 1827. Antes disso, quem desejasse estudar direito, teria de mudar-se para Coimbra, em Portugal.
Centro Cultural do Banco do Brasil, edifício construído em 1901, foi comprado em 1923 pelo Banco do Brasil. Hoje em dia, funciona um dos centros culturais mais importantes da capital.
Theatro Municipal de São Paulo, localizado no centro da cidade, na Praça Ramos de Azevedo, foi inaugurado em 1911 para atender ao desejo da elite paulista da época.
Palácio dos Correios, prédio é um dos pontos mais importantes da cidade. O projeto de Ramos de Azevedo está localizado no Vale Anhangabaú. Durante anos, foi a sede dos correios e, hoje, abriga a maior agência de São Paulo.
Bares e restaurantes: Bar da Dona Onça, Esther Rooftop, Hot Pork, La Casserole, Carlino, Casa do Porco, Cozzinha do Centro, Fôrno, Ramona, Drosophyla, entre outros.
Loja comercial para locação no centro da cidade com alto índice de concentração de pedestres e empresas de vários tipos e padrões.

Localizada a apenas 70m do metrô São Bento; 120m do Valedo Anhangabaú e 250m da R. 25 de Março, locais com alta densidade de pessoas.

Retorno financeiro garantido, local era utilizado como ponto comercial de refeições.

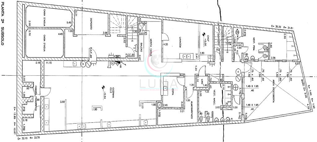
Com 873 m² de área útil: .

- Infraestrutura de cozinha (incluindo câmaras frigoríficas).
- Térreo (m²) 297,54m
- 1°SS 278,54m
- 2°SS 297,54m
-- Testada 10m
Detalhes do Imóvel
Serviço de Cozinha
Lavabo
Copa
Escritório

Entre em contato para mais informações ou agendamento de visitas.

Entre em contato


Ao enviar, você concorda com a Política de Privacidade.

Arbo Imóveis 2

(11) 40... ver telefone

Localização

Rua Líbero Badaró - Centro, São Paulo - SP

IMPORTANTE: As informações exibidas nesta página fazem parte de um anúncio publicitário: PT5140027 - Ponto na Rua Líbero Badaró Centro em São Paulo. Dreamcasa não garante a precisão ou veracidade do anúncio ou de qualquer informação associada a ele. Dreamcasa não possui controle sobre o conteúdo, que é de responsabilidade de Arbo Imóveis 2. Todas as informações são fornecidas e mantidas por Arbo Imóveis 2 - J06932 - PR. Por favor, entre diretamente em contato com Arbo Imóveis 2 para obter informações mais detalhadas.

Antes de visitar um imóvel

1

Agendar a visita ao imóvel de preferência quando ainda possui luz solar, para que veja a iluminação natural e onde o sol é mais predominante.

2

Pedir uma cópia da planta do imóvel, pois assim pode planejar previamente como ficaria cada espaço depois da mudança.

3

Ter uma média de consumo dos últimos 3/6 meses do imóvel, como IPTU, água, condomínio etc. Assim saberá o que esperar no quesito despesas fixas do imóvel. Peça a imobiliária para providenciar.

4

Controle a pressão e a temperatura da água nos banheiros e na cozinha, para ter certeza que tudo funciona como deveria.

5

Ao notar pequenos reparos a serem feitos, como parede com mofo, vazamentos, piso quebrado: Faça um acordo prévio com os responsáveis pelo imóvel sobre quem irá arcar com os trabalhos e despesas.

6

Verificar a que distancia de casa fica a escola e de uma forma geral se tem hospitais nas redondezas, farmácias, supermercados. Assim, você pode garantir uma melhor qualidade de vida para si e seus familiares.

7

Se realmente gostar do imóvel parta para a parte de documentação, confira se está tudo regular e sem débitos antes de prosseguir.

8

A imobiliária/corretor de imóveis também deve ser regular, com CRECI e boa reputação no mercado.