Terreno à Venda, 404 m² por R$ 490.000

Terreno à Venda, 404 m² por R$ 490.000 REO930717
Terras de Santa Teresa, Itupeva - SP

404m2

Loteamento à venda em Residencial Ibi-aram Ii - SP

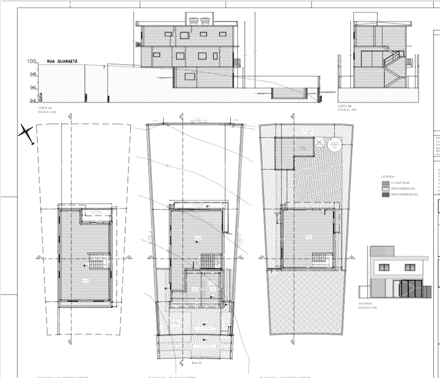
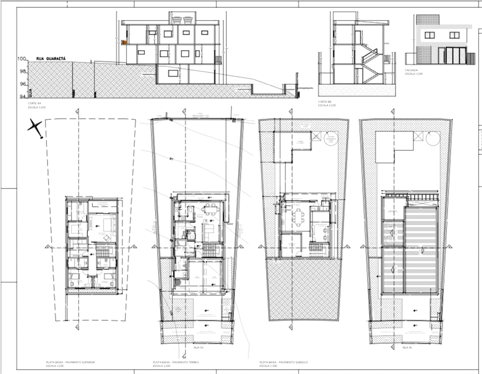
TERRENO A VENDA CONDOMÍNIO IBI ARAM ll REF:930717Terreno pronto para construir e ótima localização. Está incluso:-sondagem do terreno -topografia -projeto arquitetônico, estrutural e hidráulico.-projeto todo aprovado pela prefeitura.

Simular Financiamento deste imóvel


Preço de venda do imóvel

Valor a ser pago à vista

Em meses
* As taxas, cálculos e resultados apresentados possuem caráter meramente informativo, usam o sistema de amortização constante e podem não refletir as condições de financiamento deste imóvel.

Entre em contato


Ao enviar, você concorda com a Política de Privacidade.

Lopes Residence

(11)953... ver telefone

Localização

Rua Russia - Terras de Santa Teresa, Itupeva - SP

IMPORTANTE: As informações exibidas nesta página fazem parte de um anúncio publicitário: TE5517079 - Terreno na Rua Russia Terras de Santa Teresa em Itupeva. Dreamcasa não garante a precisão ou veracidade do anúncio ou de qualquer informação associada a ele. Dreamcasa não possui controle sobre o conteúdo, que é de responsabilidade de Lopes Residence . Todas as informações são fornecidas e mantidas por Lopes Residence - 26.810 - SP. Por favor, entre diretamente em contato com Lopes Residence para obter informações mais detalhadas.

Antes de visitar um imóvel

1

Agendar a visita ao imóvel de preferência quando ainda possui luz solar, para que veja a iluminação natural e onde o sol é mais predominante.

2

Pedir uma cópia da planta do imóvel, pois assim pode planejar previamente como ficaria cada espaço depois da mudança.

3

Ter uma média de consumo dos últimos 3/6 meses do imóvel, como IPTU, água, condomínio etc. Assim saberá o que esperar no quesito despesas fixas do imóvel. Peça a imobiliária para providenciar.

4

Controle a pressão e a temperatura da água nos banheiros e na cozinha, para ter certeza que tudo funciona como deveria.

5

Ao notar pequenos reparos a serem feitos, como parede com mofo, vazamentos, piso quebrado: Faça um acordo prévio com os responsáveis pelo imóvel sobre quem irá arcar com os trabalhos e despesas.

6

Verificar a que distancia de casa fica a escola e de uma forma geral se tem hospitais nas redondezas, farmácias, supermercados. Assim, você pode garantir uma melhor qualidade de vida para si e seus familiares.

7

Se realmente gostar do imóvel parta para a parte de documentação, confira se está tudo regular e sem débitos antes de prosseguir.

8

A imobiliária/corretor de imóveis também deve ser regular, com CRECI e boa reputação no mercado.